www.shenyangoffice.com
首页
写字楼 | 办公楼
写字间 | 办公室
商办 | 独体楼
工业 | 产业园
共享办公
汇好办
写字楼地图
写字楼资讯
024-88668088
写字楼出租
写字楼出售
首页
>
君合联创空间
> 君合联创空间平层图
024-31077088
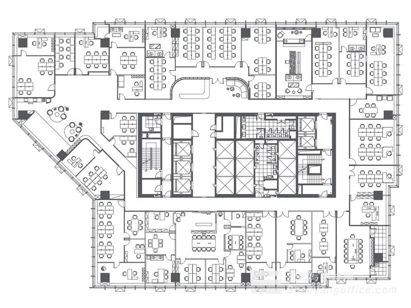
君合联创空间平层图
地址:[沈河区 - 青大金廊] 沈阳市沈河区青年大街121号嘉里中心a座8f
加入收藏
君合联创空间
平层图
君合联创空间君合联创
嘉里中心A座8F
1户/层,共1层,电梯数:3
面积参考:
4人间、6人间、8人间